Book a Property Valuation

Call us today on 01616 810 001
Email: lettings@landmarkpm.co.uk

Hillside, Lilleshall

Offers in region of £925,000

4 Bedroom House For Sale in Hillside, Lilleshall

2 4 3

This individually designed four bedroom detached property is positioned within the sought after village of Lilleshall with the convenience of being close to commuter links and within Newport school catchment for the Adams Grammar School and Newport Girls High School. The design has influences from the local Duke of Sutherland style properties evident from the gables and attention to detail within the brickwork. Accommodation throughout is spacious and well proportioned incorporating field views to the rear and a private aspect to the front. Consideration has been given to energy efficiency including the installation of an air source heat pump, under floor heating, and a wood burning stove. The driveway has parking for several vehicles and the two storey detached double garage would be ideally suited to a home office or as an annexe ( subject to planning consent).



Lilleshall village has a highly regarded primary school and community life centres around the village hall, cricket club and St Michaels Church. Lilleshall Sports Centre hosts a variety of clubs including golf, archery and gymnastics. Nearby the A518 is a commuter link to Stafford, Telford and the M54. Telford train station has regular services to Wolverhampton, Birmingham and onward to London Euston. The nearby market town of Newport has a range of pubs, eateries, independent shops and supermarkets including Waitrose. Telford Centre has a range of retail outlets, supermarkets, pubs, eateries and leisure facilities.



Outside.

The property is approached over a driveway leading to the main entrance with canopied porch and a detached double garage. The double garage has two up and over doors, light and power. Stairs rise to the first floor store room with light, power and four Velux windows. Access to the side of the property leads to the rear garden having far reaching countryside views. The garden is on two levels with borders of mature hedging and a large Indian stone paved terrace provides an ideal seating and entertaining area.



Ground Floor.

The entrance hall has a guest cloakroom, built in storage and stairs to the first floor landing. The kitchen has dual aspect windows to the front and rear gardens and extends into the dining area. The orangery is positioned between the kitchen, dining area and sitting room and has dual aspect windows including French doors to the rear garden. The sitting room has a wood burning stove to the centre of the room and French doors opening into the orangery. The study is to the front of the property and could also be used as a play room/snug. The laundry/boot room has access to the kitchen and the side of the property.



First Floor.

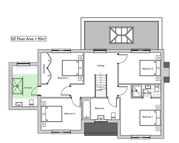
The master bedroom is a large double bedroom and has far reaching field views. The master en-suite has a double walk in shower, wash hand basin and WC. Bedrooms 2, 3 and 4 are all double rooms with bedroom 2 having an en-suite shower room. The family bathroom has a panelled bath, wash hand basin and WC.





Tenure: Freehold

Council Tax Band: TBC

EPC Rating: TBC

Services: Air source heat pump, under floor heating, wood burning stove, mains electricity, water and drainage

Important Information

  • This is a Freehold property.

Property Features

  • 10 Year ICW Warranty
  • Far Reaching Countryside Views to the Rear
  • Detached Double Garage with First Floor Store Room
  • Driveway with Parking for Several Vehicles
  • Open Plan Kitchen/Dining Room
  • 2 Reception Rooms
  • Orangery
  • Laundry/Boot Room and Guest Cloakroom
  • 4 Double Bedrooms
  • Family Bathroom and 2 En-Suites

floorplan

floorplan

floorplan

Sorry! An EPC is not available for this property.

The Coach House, Allscott, Shr...

£895,000

5 Bedroom Detached House

More details...

Wellington Road, Horsehay, Tel...

£750,000

4 Bedroom House

More details...

Shepherds Lane, Red Lake, Telf...

£695,000

4 Bedroom Detached House

More details...

Church Street, Broseley, Shrop...

£950,000

4 Bedroom Detached House

More details...

Ref: EAXML984_11963549

Brought to you by

Contact us

About us

Landmark Property Management has been established in the Manchester/Lancashire area for over 17 years. 


Update Cookies Preferences